Umgestaltung für 5,8 MillionenSo soll der Bedburger Schlosspark in Zukunft aussehen

Mehr Aufenthaltsqualität soll der Schlosspark nach seiner Umgestaltung bieten.
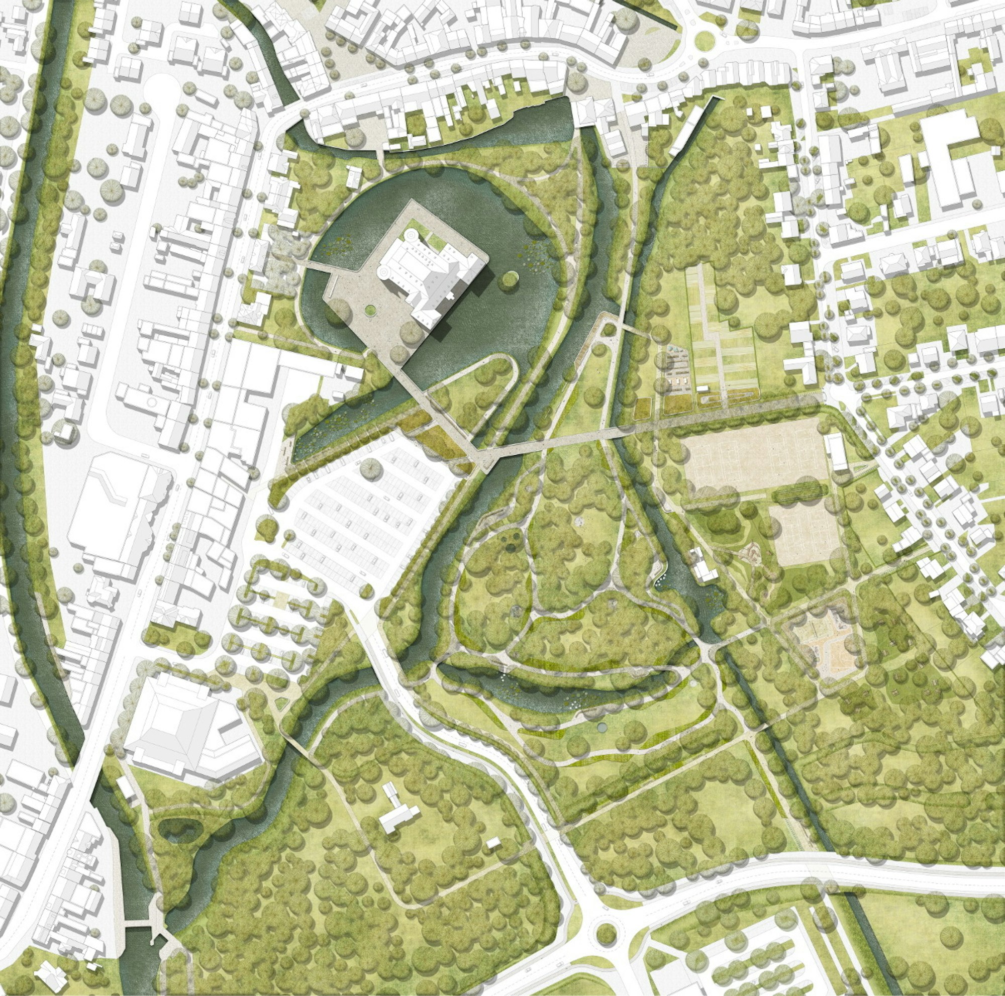
Copyright: Büro A24 Landschaft (Visualisierung)
Bedburg – Einst war der Park ein prächtiger Vorzeigegarten der Schlossherren, heute wirkt er eher wie ein versteckt gelegener, verwunschener Märchenwald. Der Bedburger Schlosspark soll nun aus seinem Dornröschenschlaf geweckt werden. Ein Berliner Landschaftsplaner hat den „freiraumplanerischen Wettbewerb“ zur Umgestaltung des Areals gewonnen und will den Park so gestalten, dass er wieder mehr Aufmerksamkeit verdient und mehr Aufenthaltsqualität entfaltet.
Das Büro A24 Landschaft plant neue Wege durch den Schlosspark, Sitzbänke und Skulpturen, große und quaderförmige Trittsteine im Wasser und Aufenthaltszonen am Ufer. Die Bleichwiese, die in früheren Zeiten zum Trocknen und Bleichen von Wäsche diente und vom Schloss aus gesehen hinter der Mühlenerft liegt, soll freigelegt und mit Wegen erschlossen werden. Hier kann „ein zusätzlicher Ort zum Verweilen mit Blick auf das Schloss“ entstehen, sagt Bürgermeister Sascha Solbach.
Schlosspark Bedburg soll zwei neue Zugänge bekommen
Der Park erhält den Plänen zufolge auch zwei neue Zugänge: einmal über das historische Rathaus vom Marktplatz kommend, zum anderen von Süden aus Richtung des Zuckerfabrikgeländes, auf dem bald ein großes Baugebiet entstehen soll. Vorgesehen sind auch Tischtennisplatten, eine Boulebahn oder Picknickflächen.

Der Gewinnerentwurf sieht unter anderem Trittsteine im Wasser vor.
Copyright: Büro A24 Landschaft (Visualisierung)
„Der Beitrag von A24 Landschaft hat uns durch seine Behutsamkeit und Angemessenheit im Umgang mit Bestehendem und der Schaffung von Neuem überzeugt“, sagt Solbach, der dem Preisgericht ebenso angehörte wie Vertreterinnen aus örtlicher Politik, Verwaltung, Unterer Naturschutzbehörde des Kreises, Bezirksregierung Köln, Erftverband und Isek-Projektsteuerung sowie Fachpreisrichtern. Isek ist das Integrierte Städtebauliche Konzept, in dessen Rahmen die Umgestaltung des Parks stattfindet.
Budget für Umgestaltung des Schlossparks liegt bei 5,8 Millionen Euro
Vor einem Jahr hatte die Stadt den Wettbewerb ausgelobt, elf Planungsbüros nahmen daran teil. Die Federführung bei dem Verfahren hatte das Planungsbüro comp:ar aus Dortmund.
Der Gewinner strich rund 44.000 Euro Preisgeld ein, für den zweiten Preis erhielt ein Landschaftsarchitekt aus Hannover rund 27.000 Euro, und ein Essener Büro erhielt als Anerkennung für außergewöhnliche Leistungen 10.000 Preisgeld. Die Kosten haben das Land und der Bund übernommen.

Copyright: Büro A24 Landschaft (Visualisierung)
Seit einigen Tagen verhandelt die Stadt bereits wegen der Umsetzung des Konzepts. Schon bis zum Spätsommer sollen die Entwurfsplanungen stehen. Dabei muss allerdings noch geklärt werden, welche der Berliner Vorschläge tatsächlich umgesetzt werden können. Das Budget umfasst 5,8 Millionen Euro. Los geht es dann, wenn das Land den entsprechenden Förderbescheid erteilt.
Das könnte Sie auch interessieren:
Schon jetzt läuft die Umgestaltung der alten Schlossgärtnerei, in der Gartenparzellen für die Allgemeinheit geschaffen werden. Auch der Spielplatz im Schlosspark soll noch in diesem Jahr neu gestaltet werden. Beide Vorhaben sollen noch im Frühjahr abgeschlossen sein.



