Hotel in den BäumenHochseilgarten K1 in Odenthal – Zwölf Baumhäuser

Eine Terrasse in den Baumwipfeln: An solchen Referenzobjekten orientiert sich die Planung.
Copyright: Alain Laurens
- Seit sieben Jahren träumen die Betreiber von diesem Projekt in luftiger Höhe.
- Geplant sind luxuriöse Baumhäuser für zwei bis vier Personen in einer Höhe von maximal sieben Metern.
- 80.000 bis 130.000 Euro koste ein Baumhaus ohne Anschlüsse und Ausgleichspflanzungen, verriet der Investor.
Odenthal – Astrid Lindgren, die schwedische Kinderbuchautorin, war dafür bekannt, dass sie noch in hohem Alter mit Begeisterung auf hohe Bäume kletterte und auch gerne an ungewöhnlichen Plätzen schlief. Der Hochseilgarten K1 in Eikamp wäre da wohl ganz nach ihrem Geschmack gewesen.
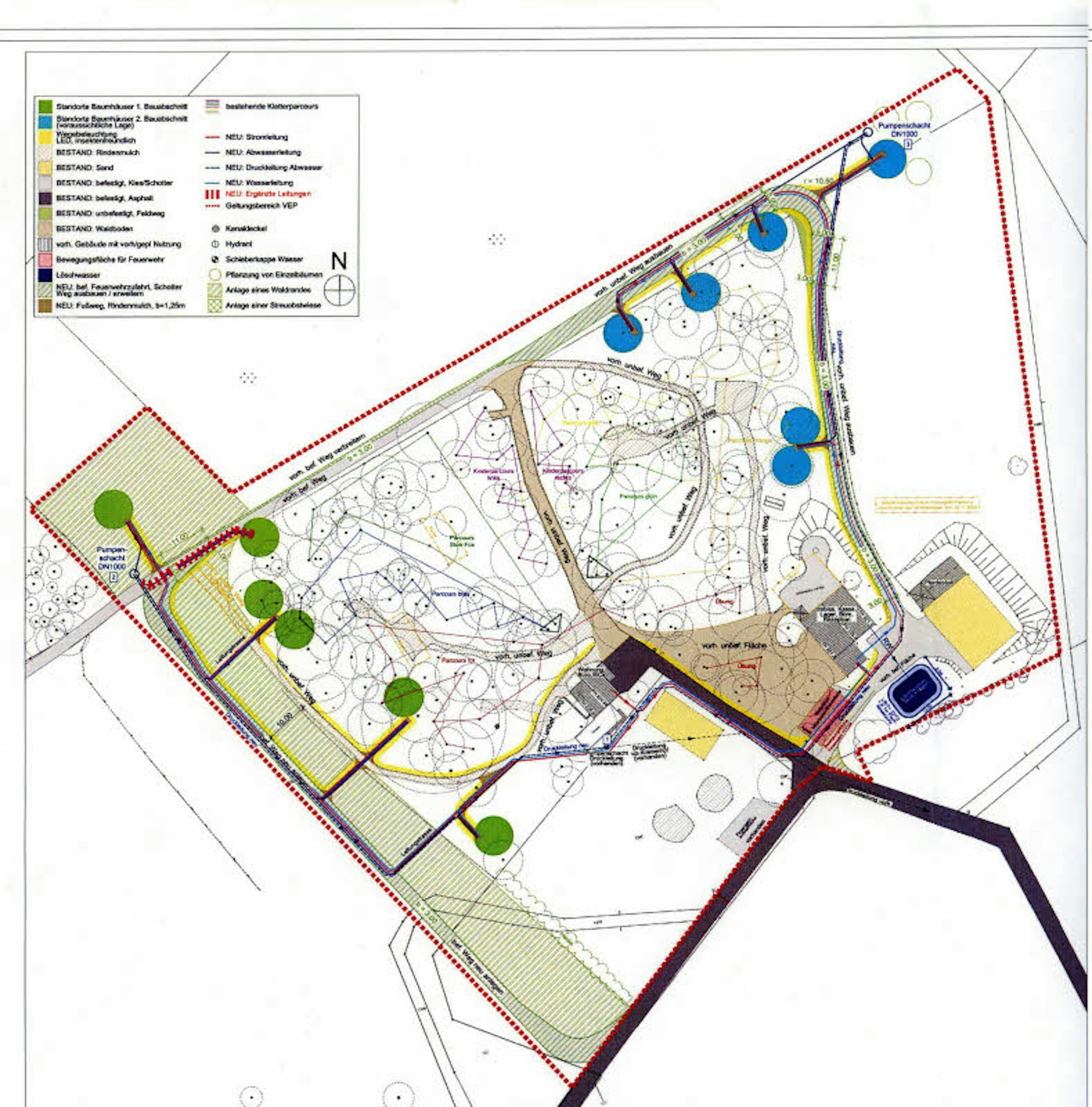
Dort soll man demnächst nicht nur in den Wipfeln klettern, sondern auch übernachten können. Das sehen die Pläne der Betreiber der Anlage, Isabella Neven DuMont und Stefan Vornholt, vor. Sechs Baumhäuser sollen hier zunächst im westlichen Teil des Geländes entstehen. In einem zweiten Bauabschnitt sind weitere sechs Unterkünfte im nördlichen Teil geplant.
Baumhäuser für zwei bis vier Personen
Seit sieben Jahren träumen die Betreiber von diesem Projekt in luftiger Höhe. Mit der Entscheidung im Gemeinderat scheint es nun auch auf dem Boden planerischer Realität fest verankert werden zu können. Dementsprechend groß war die Erleichterung gestern: „So richtig kann ich es noch gar nicht fassen, dass wir jetzt beginnen können“, sagte Stefan Vornholt.
Politische Mehrheit für die Häuser im Wald
Der Gemeinderat hat am Dienstagabend den Weg für die geplanten Baumhäuser im Hochseilgarten K1 in Eikamp freigemacht. Mit großer Mehrheit stimmten die Fraktionen für das Projekt und die damit verbundenen planungsrechtlichen Änderungen. Die Fraktion von Bündnis90/Die Grünen votierte dagegen, der Bürgermeister (parteilos) enthielt sich der Stimme. Die Einzelheiten des Bauprojektes zum Betrieb und den vorgeschriebenen Ausgleichsmaßnahmen wurden in einem städtebaulichen Vertrag niedergelegt, den die Gemeinde mit den Betreibern des Hochseilgartens , Isabella Neven DuMont und Stefan Vornholt, abschließen will. Nach Unterzeichnung kann der Bauantrag für das Vorhaben, gegen das es in der Vergangenheit auch Proteste von Anwohnern gab, gestellt werden. Geplant sind insgesamt zwölf Baumhäuser, die in zwei Bauabschnitten errichtet werden sollen. Begonnen werden soll zunächst mit sechs Unterkünften im westlichen Teil des Geländes. (spe)
Geplant sind luxuriöse Baumhäuser für zwei bis vier Personen in einer Höhe von maximal sieben Metern. Die Wohnfläche wird jeweils 20 Quadratmeter betragen, zuzüglich einer zehn Quadratmeter großen Terrasse.

Auch diese Häuser werden vom Investor als Referenzobjekte angegeben .
Copyright: Alain Laurens
Vier der Häuschen sollen in den alten, 30 Meter hohen Bäumen verankert werden und über Wendeltreppen zu erreichen sein, zwei werden vermutlich auf Stelzen am Waldrand errichtet.
Bis zu 130.000 Euro pro Baumhaus
Wer nun „Holzklasse“ von der Unterbringung im Wald erwartet, ist auf dem Holzweg.

Das Areal mit den Baumhäusern, die zuerst errichtet werden sollen (grüne Punkte), und denen der zweiten Bauphase (blau).
Copyright: ca
„Alle Baumhäuser werden über sanitäre Anlagen, Strom und Wasser verfügen und so isoliert sein, dass man dort auch im Winter übernachten kann“, so Vornholt, der seinen Gästen auch Sonnenauf- und Untergänge frei Haus liefern möchte. Solaranlagen seien hingegen nie geplant gewesen, machten im Wald auch nicht wirklich Sinn.
Das könnte Sie auch interessieren:
80.000 bis 130.000 Euro koste ein Baumhaus ohne Anschlüsse und Ausgleichspflanzungen, verriet der Investor. Für die Arbeiten an den alten Bäumen, überwiegend Buchen, habe man einen anerkannten Baumsachverständigen hinzugezogen, der nach neuesten Erkenntnissen des Baumschutzes arbeite, meinte der Betreiber.
Baumhäuser sollen sich in Hochseilgarten einfügen
„Wir haben die Latte selbst sehr hoch gelegt. In den vergangenen Jahren haben wir mehr gepflanzt als gefällt“, erklärte er mit Blick auf die zahlreichen Auflagen. „Schließlich wollen wir ja, dass die Bäume erhalten bleiben.“ Und die müssen vital sein: „An starken Ästen können bis zu 20 Tonnen hängen.“
Die Häuser sollen sich harmonisch in die Anlage einfügen und den Gästen ein Naturerlebnis der besonderen Art verschaffen. Um das Bedürfnis nach Ruhe zu erfüllen, müsse möglicherweise auch der Betrieb des Klettergartens mit seinen Öffnungszeiten darauf abgestimmt werden, überlegt Vornholt.
„Jedenfalls wird das Vorhaben für alle verträglich sein und auch die Parkplatzsituation wird sich nicht verschlechtern“, versprach er. 2020 sollen Planungen und Bau erfolgen, im Frühjahr 2021 hoffen die Betreiber, das Baumhauscamp eröffnen zu können. Für Astrid Lindgren kommt das zu spät, andere können das Abenteuer demnächst wagen.



